г. Санкт-Петербург, ул. Сиреневая, д.105, (отдельный вход)

Вход для сотрудников

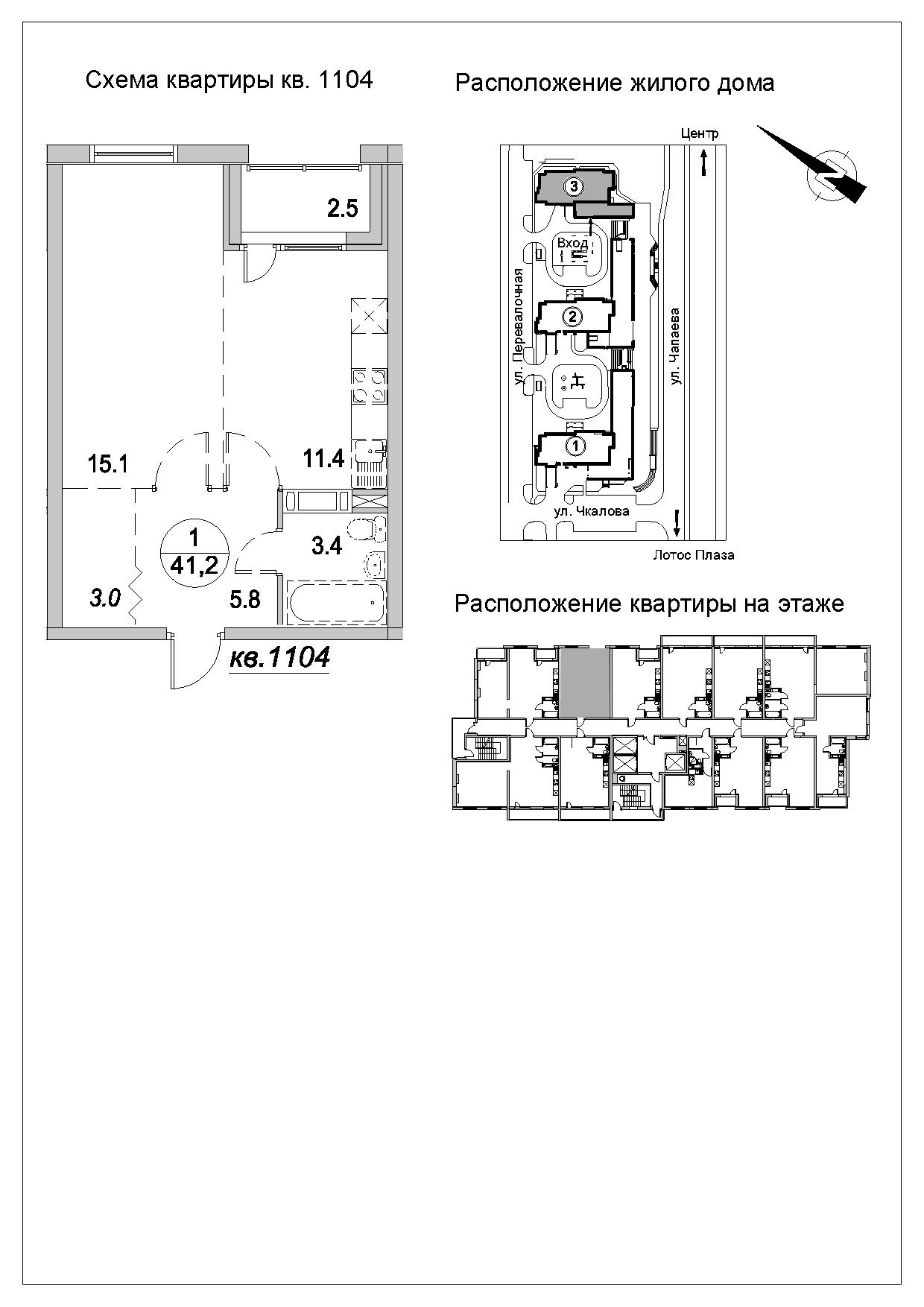
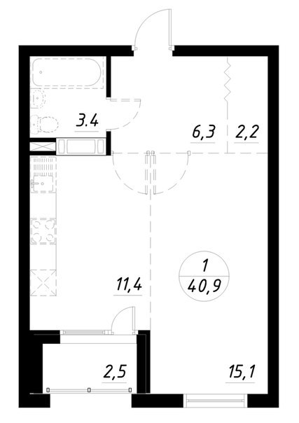
ЖК "Высокий стандарт", ул. Чапаева. Квартира 41 кв м

Просмотров страницы: 297

Регион: Петрозаводск

Район: Перевалка

Адрес: ул. Чапаева

Общая площадь: 41 кв.м.

Вид: 1

Тип дома: 4

Лифт: Есть

Балкон: Есть

1 млн 990.9 тыс

Современный монолитный дом в престижном жилом комплексе «Высокий Стандарт»

 

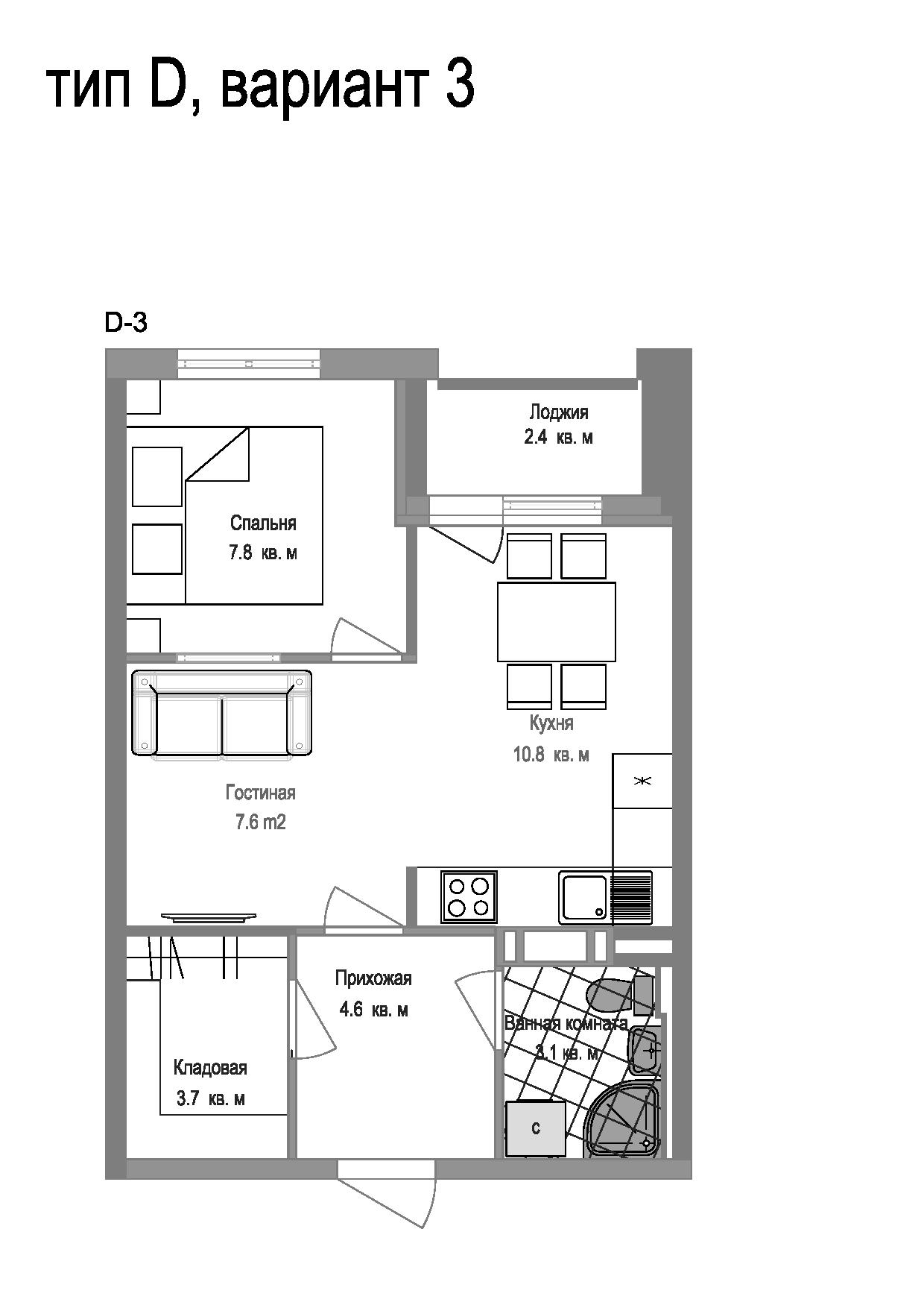
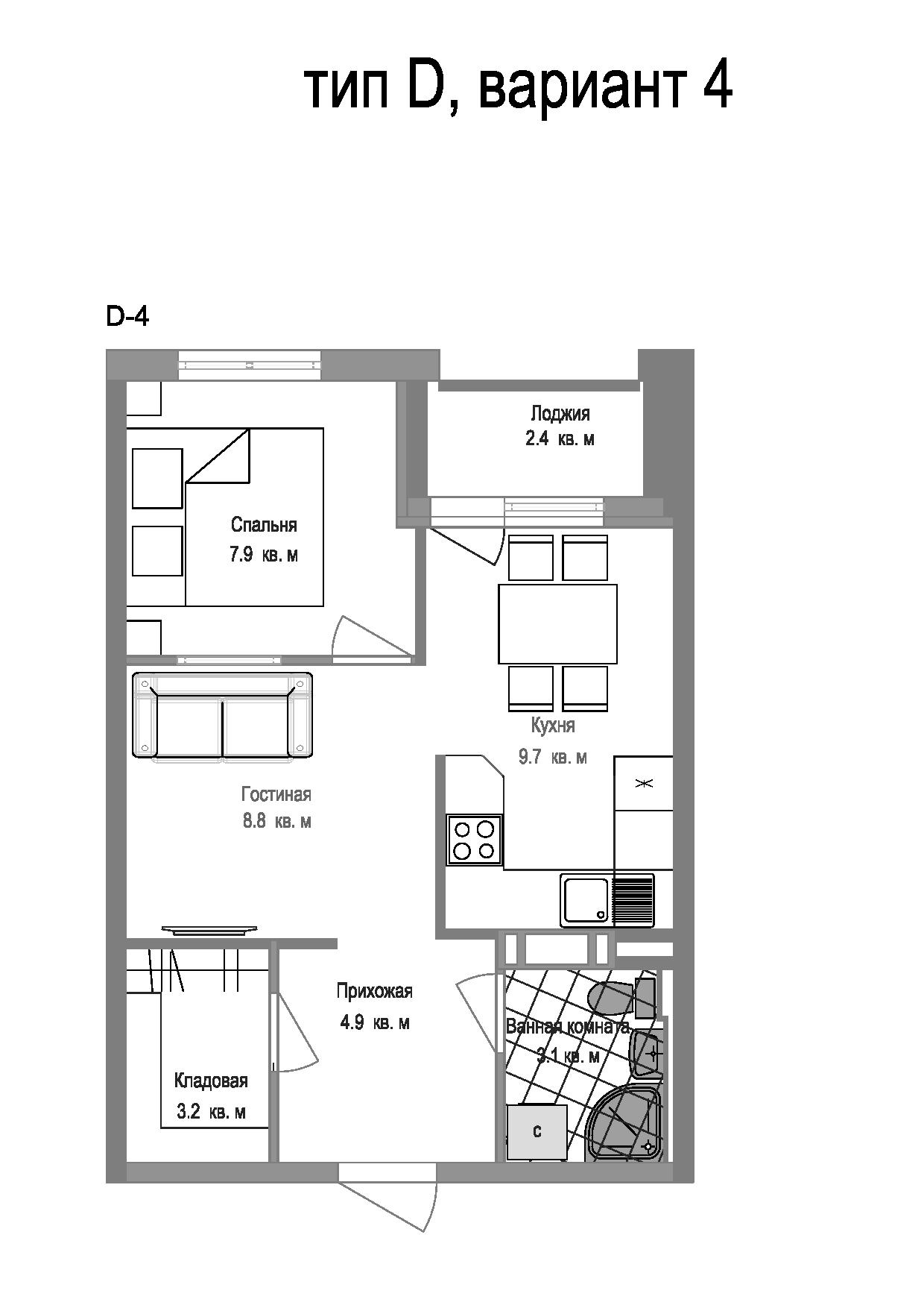
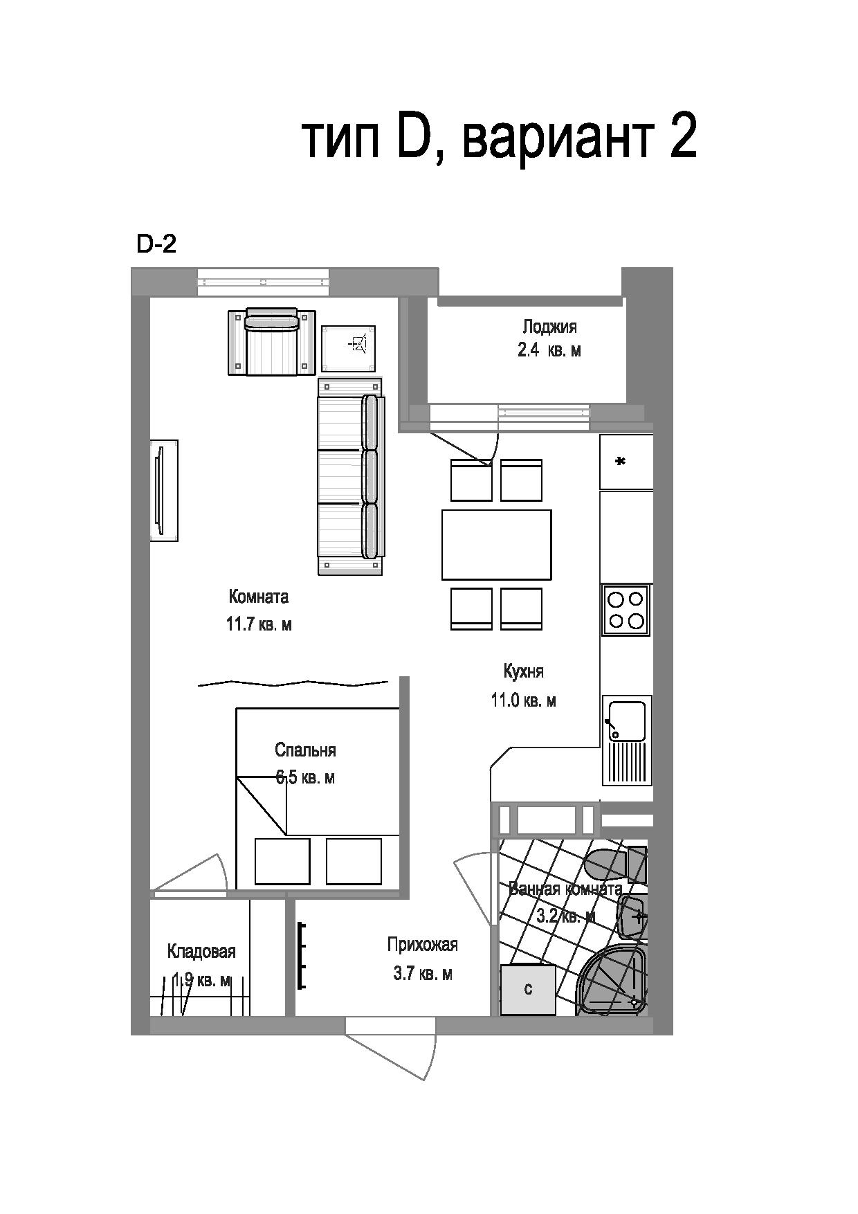
Вашему вниманию предлагается просторная квартира с разными вариантами планировки. Совмещенный санузел - 3,4 кв. м., балкон - 2,5 кв. м. 

В здании:

1). Дизайнерский парадный холл с круглосуточной охраной, отдельной почтовой комнатой, охраняемым велопаркингом и колясочной.
2). Скоростные и бесшумные лифты мирового бренда "OTIS" (Франция), также присутствуют два индивидуальных широких лестничных подъема.
3). Установлена крышная газовая котельная, которая обеспечивает теплом и горячей водой круглый год. Низкие коммунальные платежи.
4). Собственная авторитетная управляющая компания.
5). Спортивная и детские площадки с современным травмобезопасным покрытием, развитая инфраструктура комплекса, множество магазинов и салонов.

Великолепные панорамные виды из окон квартиры на город и озеро не оставят равнодушными Вас и Ваших гостей!
Бронирование квартиры - взнос от 11 до 21 % стоимости. Остаток можно вносить любыми суммами (без процентов) до ввода дома в эксплуатацию - сентябрь 2017 года.

ВОЗМОЖНО ПРЕДОСТАВЛЕНИЕ ЗАЙМА НА ПЕРВОНАЧАЛЬНЫЙ ВЗНОС ПОД ЗАЛОГ ВАШЕЙ НЕДВИЖИМОСТИ

После ввода в эксплуатацию и передачи ключей от квартиры на оставшуюся часть возможно предоставление рассрочки без лишних справок и поручителей.

Подписаться на новости по этому объекту
Хочу узнать больше, перезвоните мне