г. Санкт-Петербург, ул. Сиреневая, д.105, (отдельный вход)

Вход для сотрудников

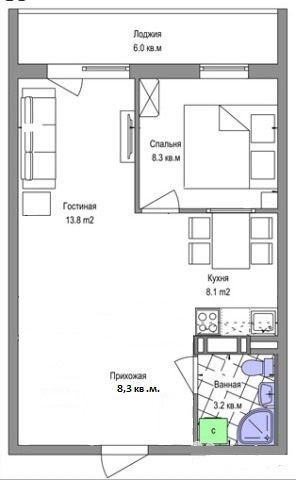
Готовая двухкомнатная квартира оригинальной планировки в ЖК "Высокий Стандарт"

Просмотров страницы: 199

Регион: Петрозаводск

Район: Центр

Адрес: улица Чапаева, 44

Общая площадь: 49 кв.м.

Вид: 1

Тип дома: 4

Этаж: 10

Лифт: Есть

Балкон: Есть

Двухкомнатные квартиры
2 млн 200 тыс
2 млн 380 тыс

Телефон для осмотра квартиры: 8-911-40-17-610.

-

Есть места в подземном автопаркинге и последняя кладовка в доме (23 кв.м.)!
-
Отличная возможность приобретения готовой двухкомнатной квартиры-студии оригинальной планировки в жилом комплексе "Высокий Стандарт".
-
  Отличный этаж! Превосходный вид на озеро и город!
-
Квартира подходит под ипотеку с государственной поддержкой!
-
Возможно приобретение данной квартиры в рассрочку:
-
от 480 000 рублей - первоначальный взнос (+ получаете ключи от квартиры и возможность регистрации себя и членов семьи);
1 720 000 рублей - остаток в рассрочку, без справок о доходах, поручителей и лишних документов. В рублях, от 10,5 до 14,5 % годовых!
-
Планировка приложена к фотографиям.
-

Квартира с частичной отделкой: натяжные потолки, выделена отдельная комната, обои, локальное освещение, на полу в санузле - керамическая плитка!
-
Современный монолитно-кирпичный дом, сдан в эксплуатацию - в сентябре 2014 года!
-
Современные скоростные бесшумные лифты мирового бренда "OTIS" (Франция).
-
Крышная газовая котельная обеспечит Ваши потребности в тепле и горячей воде круглый год без отключений.
-
Просторный уютный дизайнерский парадный холл с круглосуточной профессиональной охраной, выделенными зонами колясочных и велопаркинга, отдельной почтовой комнатой.
-
Собственная управляющая компания, круглосуточный "Call-центр" для клиентов компании, личный кабинет на сайте компании и управляющей организации.
-
Собственная программа предоставления займов по одному паспорту. Без справок о доходах и поручителей.
-
Спортивная площадка для взрослых и детей, детские площадки с травмобезопасным покрытием, гостевые парковки, подземный паркинг, новые магазины и салоны в домах комплекса и многое многое другое!!!
-
Подземный автопаркинг - 308 600 рублей (возможна покупка в рассрочку, при первом взносе - 98 000 рублей)!
-
Кладовое помещение в автопаркинге (23 кв.м.) - 225 600 рублей!

Вадим Тестовый

88000000000

Подписаться на новости по этому объекту
Хочу узнать больше, перезвоните мне